ロードレイン側溝 乗り入れタイプ
乗り入れタイプ
路面上の雨水を確実に排水できる連続開口の特徴を持つ商品で車両が直接、側溝本体の乗り入れ可能です。また開口部に入るオリジナルリット(鋼製蓋)は、騒音・落下防止・滑り止め等安全に十分配慮した商品になっています。
側溝
| 規格 | W | H1 | H2 | H3 | a | R | 参考重量(kg) | ダウンロード | ||
|---|---|---|---|---|---|---|---|---|---|---|
| D | 1.0m | 2.0m | ||||||||
| 200× | 200 | 310 | 372 | 302 | 70 | 112 | 95 | 170 | 340 | DL |
| 250× | 250 | 360 | 433 | 363 | 70 | 137 | 120 | 215 | 435 | DL |
| 300 | 483 | 413 | 70 | 117 | 235 | 470 | DL | |||
| 400 | 588 | 513 | 75 | 114 | 270 | 540 | DL | |||
| 300× | 300 | 420 | 488 | 413 | 75 | 167 | 145 | 275 | 555 | DL |
| 400 | 593 | 513 | 80 | 142 | 310 | 625 | DL | |||
| 500 | 693 | 613 | 80 | 139 | 350 | 700 | DL | |||
| 400× | 400 | 540 | 600 | 515 | 85 | 227 | 195 | 410 | 825 | DL |
| 500 | 705 | 615 | 90 | 192 | 455 | 910 | DL | |||
| 600 | 805 | 715 | 90 | 189 | 495 | 990 | DL | |||
| 500× | 500 | 670 | 731 | 631 | 100 | 292 | 245 | 610 | 1230 | DL |
| 600 | 836 | 731 | 105 | 242 | 665 | 1335 | DL | |||
| 700 | 936 | 831 | 105 | 239 | 710 | 1430 | DL | |||
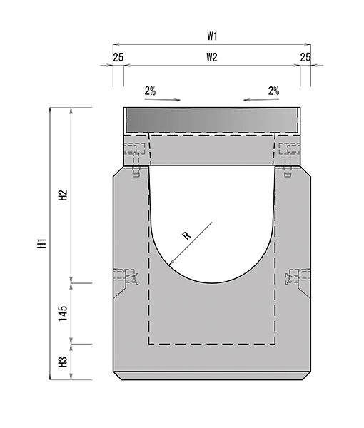
桝
| 規格 | W1 | W2 | H1 | H2 | H3 | R | 参考重量(kg) | ダウンロード | |
|---|---|---|---|---|---|---|---|---|---|
| D | |||||||||
| 200× | 200 | 360 | 310 | 532 | 307 | 80 | 95 | 265 | DL |
| 250× | 250 | 410 | 360 | 593 | 368 | 80 | 120 | 305 | DL |
| 300 | 643 | 418 | 325 | DL | |||||
| 400 | 743 | 518 | 365 | DL | |||||
| 300× | 300 | 470 | 420 | 648 | 418 | 85 | 145 | 365 | DL |
| 400 | 748 | 518 | 410 | DL | |||||
| 500 | 848 | 618 | 450 | DL | |||||
| 400× | 400 | 590 | 540 | 760 | 520 | 95 | 195 | 505 | DL |
| 500 | 860 | 620 | 550 | DL | |||||
| 600 | 960 | 720 | 595 | DL | |||||
| 500× | 500 | 720 | 670 | 891 | 636 | 110 | 245 | 710 | DL |
| 600 | 991 | 736 | 765 | DL | |||||
| 700 | 1091 | 836 | 815 | DL | |||||


