ロードレイン側溝 スタンダードタイプ
スタンダードタイプ
路面上の雨水を確実に排水できる連続開口の特徴を持つ商品で境界ブロックを側溝本体に直接敷設出来る為、車道・歩道の幅員を最大限有効活用ができるタイプの商品です。
側溝
| 規格 | W | H1 | H2 | H3 | w1 | w2 | a | R | 参考重量 | ダウンロード | ||
|---|---|---|---|---|---|---|---|---|---|---|---|---|
| D | 1.0m | 2.0m | ||||||||||
| 200× | 200 | 310 | 372 | 302 | 70 | 238 | 67 | 112 | 95 | 160 | 320 | DL |
| 250× | 250 | 360 | 433 | 363 | 70 | 263 | 92 | 137 | 120 | 205 | 410 | DL |
| 300 | 483 | 413 | 70 | 117 | 220 | 445 | DL | |||||
| 400 | 588 | 513 | 75 | 114 | 255 | 515 | DL | |||||
| 300× | 300 | 420 | 488 | 413 | 75 | 293 | 122 | 167 | 145 | 260 | 520 | DL |
| 400 | 593 | 513 | 80 | 142 | 295 | 595 | DL | |||||
| 500 | 693 | 613 | 80 | 139 | 330 | 665 | DL | |||||
| 400× | 400 | 540 | 600 | 515 | 85 | 353 | 182 | 227 | 195 | 385 | 775 | DL |
| 500 | 705 | 615 | 90 | 192 | 430 | 865 | DL | |||||
| 600 | 805 | 715 | 90 | 189 | 470 | 940 | DL | |||||
| 500× | 500 | 670 | 731 | 631 | 100 | 418 | 247 | 292 | 245 | 580 | 1165 | DL |
| 600 | 836 | 731 | 105 | 242 | 630 | 1270 | DL | |||||
| 700 | 936 | 831 | 105 | 239 | 680 | 1360 | DL | |||||
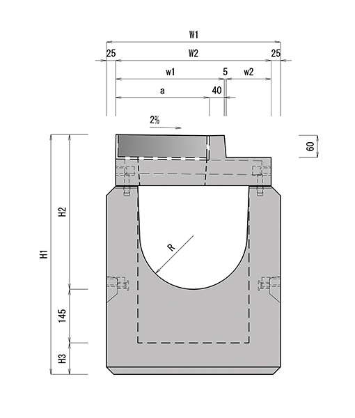
桝
| 規格 | W1 | W2 | H1 | H2 | H3 | a | w1 | w2 | R | 参考重量(kg) | ダウンロード | |
|---|---|---|---|---|---|---|---|---|---|---|---|---|
| D | ||||||||||||
| 200× | 200 | 360 | 310 | 532 | 307 | 80 | 198 | 238 | 67 | 95 | 270 | DL |
| 250× | 250 | 410 | 360 | 593 | 368 | 80 | 223 | 263 | 92 | 120 | 315 | DL |
| 300 | 643 | 418 | 80 | 335 | DL | |||||||
| 400 | 743 | 518 | 80 | 375 | DL | |||||||
| 300× | 300 | 470 | 420 | 648 | 418 | 85 | 253 | 293 | 122 | 145 | 375 | DL |
| 400 | 748 | 518 | 85 | 420 | DL | |||||||
| 500 | 848 | 618 | 85 | 460 | DL | |||||||
| 400× | 400 | 590 | 540 | 760 | 520 | 95 | 313 | 353 | 182 | 195 | 525 | DL |
| 500 | 860 | 620 | 95 | 570 | DL | |||||||
| 600 | 960 | 720 | 95 | 615 | DL | |||||||
| 500× | 500 | 720 | 670 | 891 | 636 | 110 | 378 | 418 | 247 | 245 | 740 | DL |
| 600 | 991 | 736 | 110 | 795 | DL | |||||||
| 700 | 1091 | 836 | 110 | 845 | DL | |||||||


